污水水質
SS:固體懸浮物,一般單位mg/L。一般指:應濾紙過濾水樣,將濾后截留物在105℃溫度中干燥恒重后的固體質量。
COD:化學需氧量,一般單位mg/L。COD的測定原理是:用強氧化劑(我國法定用重鉻酸鉀),在酸性條件下,將有機物氧化成為CO2和H2O所消耗的氧量,稱為化學需氧量。用CODCr,一般用COD表示。COD優點:能較精確地表示污水中有機物的含量,測定時間僅需數小時,且不受水質影響。化學需氧量越大說明水體受有機物污染越嚴重。
BOD:生化需氧量,一般單位mg /L。有機污染物經微生物分解所消耗溶解氧的量。
NH3-N:氨氮,一般單位mg/L。氨氮是指水中以游離氨(NH3)和銨離子(NH4+)形式存在的氮。
TP:總磷,一般單位mg/L。污水中含磷化合物可分為有機磷和無機磷兩類。
大腸菌群數:是每升水樣中所含有的大腸菌群的數目,以個/L計。
細菌總數:是大腸菌群數、病原菌、病毒及其他細菌的總數,以每毫升水樣中的細菌菌落總數表示。
常見基本概念
厭氧:污水生物處理中,沒有溶解氧也沒有硝態氮的環境狀態。溶解氧在0.2mg/L以下。
缺氧:污水生物處理中,溶解氧不足或沒有溶解氧但有硝態氮的環境狀態。溶解氧在0.2-0.5mg/L左右。
好氧:污水生物處理中,有溶解氧或兼有硝態氮的狀態。溶解氧在2.0mg/L以上。
曝氣:只將空氣中的氧強制向液體中專一的過程,其目的是獲得足夠的溶解氧。此外,曝氣還有防止懸浮體下沉,加強池內有機物與微生物及溶解氧接觸的目的,從而保證池內微生物在有充足溶解氧的條件下,對污水中有機物的氧化分解。
活性污泥:由細菌、真菌、原生動物和后生動物等各種生物和金屬氫氧化物等無機物所形成的污泥狀的絮凝物。有良好的吸附、絮凝、生物氧化和生物合成性能。
活性污泥法:利用活性污泥在污水中的凝聚、吸附、氧化、分解和沉淀等作用,去除污水中有機污染物的一種廢水處理方法。
生物膜法:使廢水接觸生長在固定支撐物表面的生物膜,利用生物膜降解或轉化廢水中有機污染物的一種廢水處理方法。
氣浮:氣浮法是在水中通入或產生大量的微細氣泡,使其附著在懸浮顆粒上,造成密度小于水的狀態,利用浮力原理使它浮在水面,從而獲得固液分離的方法。產生微氣泡的方式有曝氣和溶氣等。
混凝:混凝的目的在于通過向水中投加一些藥劑(混凝劑或助凝劑),使水中難以沉淀的膠體顆粒物能相互聚合,長大至能自然沉淀的程度,這個方法稱為混凝沉淀。
過濾:在水處理過程中,過濾一般是指以石英砂等粒狀填料層截留水中懸浮物質,從而使水獲得澄清的工藝流程。過濾的主要作用是去除水中的懸浮或膠體物質,特別是能有效去除沉淀技術不能去除的微笑粒子和細菌等,對COD和BOD也有某種程度的去除效果。
沉淀:利用懸浮物和水的密度差,重力沉降作用去除水中懸浮物的過程。
常用藥劑
PAC:聚合氯化鋁 燒堿:NaOH
熟石灰:Ca(OH)2 生石灰:CaO
PAM:聚丙烯酰胺 純堿:Na2CO3
污水處理方法
一、活性污泥法
1、傳統活性污泥法(一般指需氧活性污泥過程Aerobic Wastewater Process)。

2、A/O
A/O是Anoxic/Oxic的縮寫,它的優越性是除了使有機污染物得到降解之外,還具有一定的脫氮除磷功能,是將厭氧水解技術用為活性污泥的前處理,所以A/O法是改進的活性污泥法。
基本原理:A/O工藝將前段缺氧段和后段好氧段串聯在一起,A段DO(溶解氧)不大于0.2mg/L,O段DO=2~4mg/L。在缺氧段異養菌將污水中的淀粉、纖維、碳水化合物等懸浮污染物和可溶性有機物水解為有機酸,使大分子有機物分解為小分子有機物,不溶性的有機物轉化成可溶性有機物,當這些經缺氧水解的產物進入好氧池進行好氧處理時,提高污水的可生化性,提高氧的效率;在缺氧段異養菌將蛋白質、脂肪等污染物進行氨化(有機鏈上的N或氨基酸中的氨基)游離出氨(NH3、NH4+),在充足供氧條件下,自養菌的硝化作用將NH3-N(NH4+)氧化為NO3-,通過回流控制返回至A池,在缺氧條件下,異氧菌的反硝化作用將NO3-還原為分子態氮(N2)完成C、N、O在生態中的循環,實現污水無害化處理。
主要工藝缺點:缺氧池在前,污水中的有機碳被反硝化菌所利用,可減輕其后好氧池的有機負荷,反硝化反應產生的堿度可以補償好氧池中進行硝化反應對堿度的需求。 好氧在缺氧池之后,可以使反硝化殘留的有機污染物得到進一步去除,提高出水水質。 BOD5的去除率較高可達90~95%以上,但脫氮除磷效果稍差,脫氮效率70~80%,除磷只有20~30%。盡管如此,由于A/O工藝比較簡單,也有其突出的特點,目前仍是比較普遍采用的工藝。該工藝還可以將缺氧池與好氧池合建,中間隔以檔板,降低工程造價,所以這種形式有利于對現有推流式曝氣池的改造。
影響因素:A/O工藝運行過程控制不要產生污泥膨脹和流失,其對有機物的降解率是較高的(90~95%),缺點是脫氮除磷效果較差。如果原污水含磷濃度<3mg/L,則選用A/O工藝是合適的,為了提高脫氮效果,A/O工藝主要控制幾個因素:
⑴MLSS一般應在3000mg/L以上,低于此值A/O系統脫氮效果明顯降低。
⑵TKN/MLSS負荷率(TKN─凱式氮,指水中氨氮與有機氮之和):在硝化反應中該負荷率應在0.05gTKN/(gMLSS•d)之下。
⑶BOD5/MLSS負荷率:在硝化反應中,影響硝化的主要因素是硝化菌的存在和活性,因為自養型硝化菌最小比增長速度為0.21/d;而異養型好氧菌的最小比增殖速度為1.2/d。前者比后者的比增殖速度小得多。要使硝化菌存活并占優勢,要求污泥齡大于4.76d;但對于異養型好氧菌,則污泥齡只需0.8d。在傳統活性污泥法中,由于污泥齡只有2~4d,所以硝化菌不能存活并占有優勢,不能完成硝化任務。
要使硝化菌良好繁殖就要增大MLSS濃度或增大曝氣池容積,以降低有機負荷,從而增大污泥齡。其污泥負荷率(BOD5/MLSS)應小于0.18KgBOD5/KgMLSS•d
⑷污泥齡 ts:為了使硝化池內保持足夠數量的硝化菌以保證硝化的順利進行,確定的污泥齡應為硝化菌世代時間的3倍,硝化菌的平均世代時間約3.3d(20℃)
若冬季水溫為10℃,硝化菌世代時間為10d,則設計污泥齡應為30d
⑸污水進水總氮濃度:TN應小于30mg/L,NH3-N濃度過高會抑制硝化菌的生長,使脫氮率下降至50%以下。
⑹混合液回流比:R的大小直接影響反硝化脫氮效果,R增大,脫氮率提高,但R增大增加電能消耗增加運行費。
⑺缺氧池BOD5/NOx--N比值:H>4以保證足夠的碳/氮比,否則反硝化速率迅速下降;但當進入硝化池BOD5值又應控制在80mg/L以下,當BOD5濃度過高,異養菌迅速繁殖,抑制自養菌生長使硝化反應停滯。
⑻硝化池溶解氧:DO>2mg/L,一般充足供氧DO應保持2~4mg/L,滿足硝化需氧量要求,按計算氧化1gNH4+需4.57g氧。
⑼水力停留時間:硝化反應水力停留時間>6h;而反硝化水力停留時間2h,兩者之比為3:1,否則脫氮效率迅速下降。
⑽pH:硝化反應過程生成HNO3使混合液pH下降,而硝化菌對pH很敏感,硝化最佳pH =8.0~8.4,為了保持適宜的PH就應采取相應措施,計算可知,使1g氨氮(NH3-N)完全硝化,約需堿度7.1g(以CaCO3計);反硝化過程產生的堿度(3.75g堿度/gNOx--N)可補償硝化反應消耗堿度的一半左右。 反硝化反應的最適宜pH值為6.5~7.5,大于8、小于7均不利。
⑾溫度:硝化反應20~30℃,低于5℃硝化反應幾乎停止;反硝化反應20~40℃,低于15℃反硝化速率迅速下降。
因此,在冬季應提高反硝化的污泥齡ts,降低負荷率,提高水力停留時間等措施保持反硝化速率。

3、A2/O
A2O法又稱AAO法,是英文Anaerobic-Anoxic-Oxic第一個字母的簡稱(厭氧-缺氧-好氧法),是一種常用的二級污水處理工藝,可用于二級污水處理或三級污水處理,以及中水回用,具有良好的脫氮除磷效果。 該法是20世紀70年代,由美國的一些專家在AO法脫氮工藝基礎上開發的。
各反應器單元功能
1、厭氧反應器,原污水與從沉淀池排出的含磷回流污泥同步進入,本反應器主要功能是釋放磷,同時部分有機物進行氨化;
2、缺氧反應器,首要功能是脫氮,硝態氮是通過內循環由好氧反應器送來的,循環的混合液量較大,一般為2Q(Q為原污水流量);
3、好氧反應器——曝氣池,這一反應單元是多功能的,去除BOD,硝化和吸收磷等均在此處進行。流量為2Q的混合液從這里回流到缺氧反應器。
4、沉淀池,功能是泥水分離,污泥一部分回流至厭氧反應器,上清液作為處理水排放。
工藝特點
1、本工藝在系統上可以稱為最簡單的同步脫氮除磷工藝,總水力停留時間少于其他類工藝;
2、在厭氧(缺氧)、好氧交替運行條件下,絲狀菌不能大量增殖,不易發生污泥絲狀膨脹,SVI值一般小于100;
3、污泥含磷高,具有較高肥效;
4、運行中勿需投藥,兩個A段只用輕輕攪拌,以不增加溶解氧為度,運行費用低;
存在的待解決問題:
1、除磷效果難再提高,污泥增長有一定限度,不易提高,特別是P/BOD值高時更甚;
2、脫氮效果也難再進一步提高,內循環量一般以2Q為限,不宜太高;
3、進入沉淀池的處理水要保持一定濃度的溶解氧,減少停留時間,防止產生厭氧狀態和污泥釋放磷的現象出現,但溶解氧濃度也不宜過高,以防循環混合液對缺氧反應器的干擾。

4、SBR
間歇式活性污泥法,是一種按時間間歇曝氣方式來運行的活性污泥污水處理技術。
優點
1、 理想的推流過程使生化反應推動力增大,效率提高,池內厭氧、好氧處于交替狀態,凈化效果好。
2、 運行效果穩定,污水在理想的靜止狀態下沉淀,需要時間短、效率高,出水水質好。
3、 耐沖擊負荷,池內有滯留的處理水,對污水有稀釋、緩沖作用,有效抵抗水量和有機污物的沖擊。
4、 工藝過程中的各工序可根據水質、水量進行調整,運行靈活。
5、 處理設備少,構造簡單,便于操作和維護管理。
6、 反應池內存在DO、BOD5濃度梯度,有效控制活性污泥膨脹。
7、 SBR法系統本身也適合于組合式構造方法,利于廢水處理廠的擴建和改造。
8、 脫氮除磷,適當控制運行方式,實現好氧、缺氧、厭氧狀態交替,具有良好的脫氮除磷效果。
9、 工藝流程簡單、造價低。主體設備只有一個序批式間歇反應器,無二沉池、污泥回流系統,調節池、初沉池也可省略,布置緊湊、占地面積省。
不足:
1、自動化控制要求高。
2、排水時間短(間歇排水時),并且排水時要求不攪動沉淀污泥層,因而需要專門的排水設備(潷水器),且對潷水器的要求很高。
3、后處理設備要求大:如消毒設備很大,接觸池容積也很大,排水設施如排水管道也很大。
4、潷水深度一般為1~2m,這部分水頭損失被白白浪費,增加了總揚程。
5、由于不設初沉池,易產生浮渣,浮渣問題尚未妥善解決。
編輯本段適用范圍
由于上述技術特點,SBR系統進一步拓寬了活性污泥法的使用范圍。就近期的技術條件,SBR系統更適合以下情況:
1) 中小城鎮生活污水和廠礦企業的工業廢水,尤其是間歇排放和流量變化較大的地方。
2) 需要較高出水水質的地方,如風景游覽區、湖泊和港灣等,不但要去除有機物,還要求出水中除磷脫氮,防止河湖富營養化。
3) 水資源緊缺的地方。SBR系統可在生物處理后進行物化處理,不需要增加設施,便于水的回收利用。
4) 用地緊張的地方。
5) 對已建連續流污水處理廠的改造等。
6) 非常適合處理小水量,間歇排放的工業廢水與分散點源污染的治理。

5、CASS
循環式活性污泥法,是將SBR的反應池沿長度方向分為兩個部分,前部分為生物選擇區也稱預反應區,后部分為主反應區。在主反應區后部安裝了可升降的潷水器裝置,實現了連續進水間歇排水的周期循環運行,集曝氣沉淀、排水于一體。
6、氧化溝
特點是:混合液在溝內不斷地循環流動,形成厭氧、缺氧和好氧段。

二、生物膜法
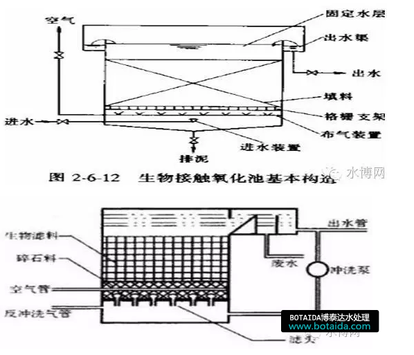
1接觸生物法
接觸生物法是一種兼有活性污泥法和生物膜法特點的一種新的污水生化處理方法。這種方法主要設備是生物接觸氧化濾池。在不透氣的曝氣池中裝有焦炭、礫石、塑料蜂窩等填料,填料被水侵沒,用鼓風機在填料底部曝氣充氧。

2膜生物反應器
是一種由膜分離單元與生物處理單元相結合的新型水處理技術。

三、厭氧
厭氧生物處理是利用厭氧性微生物的代謝特性,在無需提供外源能量的條件下,以被還原有機物作為受氫體,同時產生有能源價值的甲烷氣體。
1、化糞池

2、UASB

3、IC 內循環反應器


四、深度處理
在一級、二級處理的基礎上,對難降解的有機物、磷、氮等營養性物質進一步處理。主要包括過濾、消毒。
1、活性碳過濾器

2、二氧化氯發生器

如需要產品及技術服務,請撥打服務熱線:13659219533
選擇陜西博泰達水處理科技有限公司,你永遠值得信賴的產品!
了解更多,請點擊www.yhats.net